Warning: Undefined array key "rps-uuid" in /home/u605226917/domains/401homes.ca/public_html/wp-content/plugins/realtypress-premium/includes/class-realtypress-ddf-analytics.php on line 106
282 Ridge Street, Saugeen Shores, Ontario N0H 2C3 (27661079) – 401 Homes Realty


LOADING

282 Ridge Street Saugeen Shores, Ontario N0H 2C3

5 Bedroom 3 Bathroom 1500 - 2000 sqft
Raised Bungalow Fireplace Central Air Conditioning, Air Exchanger Forced Air

$999,900

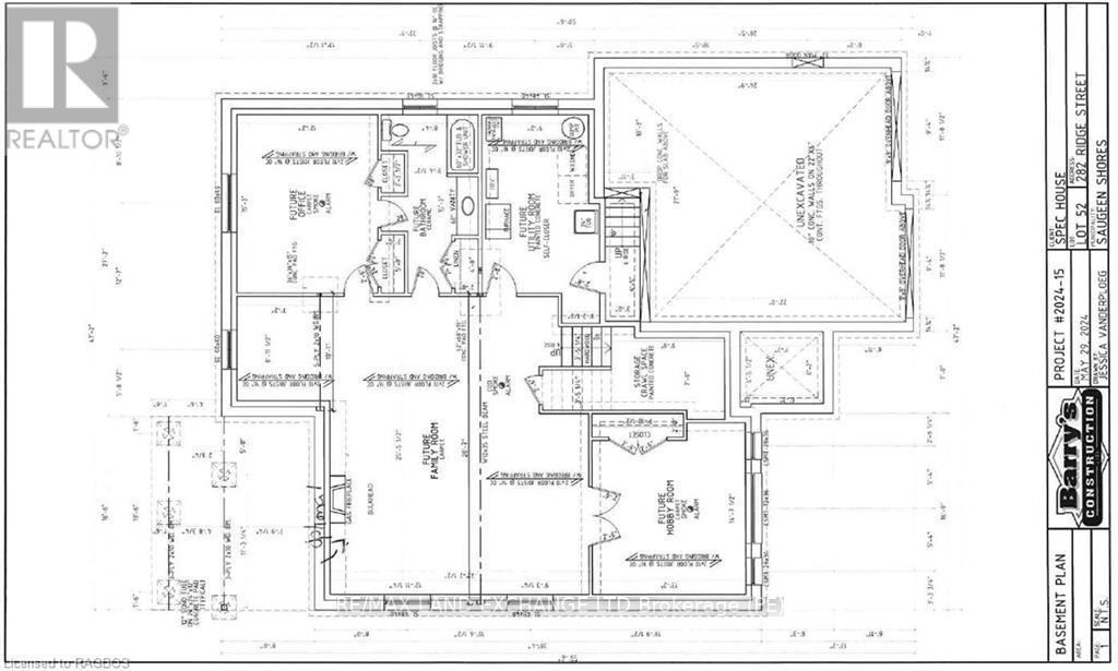
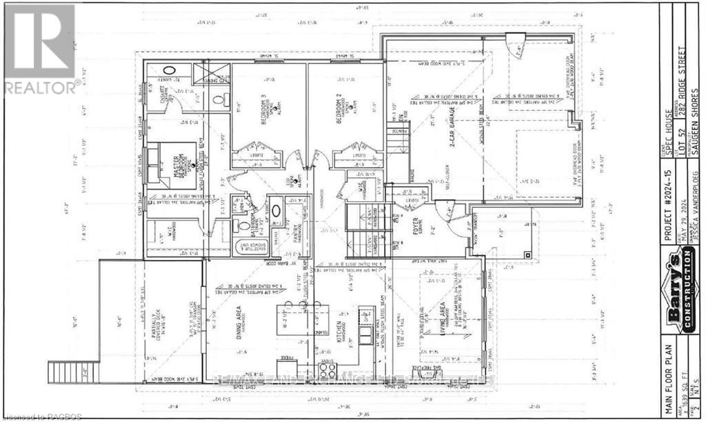
The framing is complete at 282 Ridge Street, Port Elgin for this 1639 sqft home with 3 bedrooms and 2 full baths on the main floor; featuring hardwood and ceramic flooring, walk-in kitchen pantry, tiled shower in the ensuite bath, partially covered rear deck 14 x 16'8, 9 foot ceilings and more. The basement has a separate entrance from the 2 car garage and features a large family room, 2 more bedrooms and full bath. Additional features included sodded yard, concrete drive, gas fireplace, central air, and interior colour selections for those that act early. HST is included in the asking price provided the Buyer qualifies for the rebate and assigns it to the Builder on closing. Prices subject to change without notice. (id:59203)

Property Details

MLS® Number X11822711
Property Type Single Family
Community Name Saugeen Shores
AmenitiesNearBy Beach
EquipmentType Water Heater - Tankless
Features Flat Site, Sump Pump
ParkingSpaceTotal 4
RentalEquipmentType Water Heater - Tankless
Structure Deck

Building

BathroomTotal 3
BedroomsAboveGround 3
BedroomsBelowGround 2
BedroomsTotal 5
Age New Building
Appliances Water Heater - Tankless, Garage Door Opener
ArchitecturalStyle Raised Bungalow
BasementFeatures Separate Entrance, Walk-up
BasementType N/a
ConstructionStyleAttachment Detached
CoolingType Central Air Conditioning, Air Exchanger
ExteriorFinish Stone, Vinyl Siding
FireplacePresent Yes
FireplaceTotal 1
FlooringType Tile, Hardwood
FoundationType Poured Concrete
HeatingFuel Natural Gas
HeatingType Forced Air
StoriesTotal 1
SizeInterior 1500 - 2000 Sqft
Type House
UtilityWater Municipal Water

Parking

Attached Garage
Garage

Land

AccessType Year-round Access
Acreage No
LandAmenities Beach
Sewer Sanitary Sewer
SizeDepth 127 Ft ,3 In
SizeFrontage 56 Ft ,3 In
SizeIrregular 56.3 X 127.3 Ft
SizeTotalText 56.3 X 127.3 Ft|under 1/2 Acre
ZoningDescription R1-84

Rooms

Level Type Dimensions
Basement Bedroom 4.01 m x 4.44 m
Basement Bedroom 3.71 m x 4.65 m
Basement Laundry Room 2.79 m x 4.65 m
Basement Family Room 8.1 m x 6.76 m
Main Level Foyer 2.18 m x 2.74 m
Main Level Living Room 4.93 m x 4.37 m
Main Level Kitchen 4.93 m x 3.96 m
Main Level Dining Room 2.92 m x 4.93 m
Main Level Primary Bedroom 3.43 m x 4.32 m
Main Level Bedroom 2 3.05 m x 3.58 m
Main Level Bedroom 3 3.05 m x 3.58 m

Utilities

Cable Available
Electricity Installed
Wireless Available
Sewer Installed

https://www.realtor.ca/real-estate/27661079/282-ridge-street-saugeen-shores-saugeen-shores

Interested?

Contact us for more information


Generating Captcha

Hayden Duplantis
Salesperson


RE/MAX Land Exchange Ltd.
645 Goderich St
Port Elgin, Ontario N0H 2C0

Debbie Duplantis
Broker


RE/MAX Land Exchange Ltd.
645 Goderich St
Port Elgin, Ontario N0H 2C0

Your Favourites

 

No Favourites Found

 

Compare listings

Compare